Wohnungssuche
Familienwohnung sofort verfügbar
347.00 €
Grundmiete
257.00 €
Nebenkosten
604.00 €
Miete inkl. Heizkosten
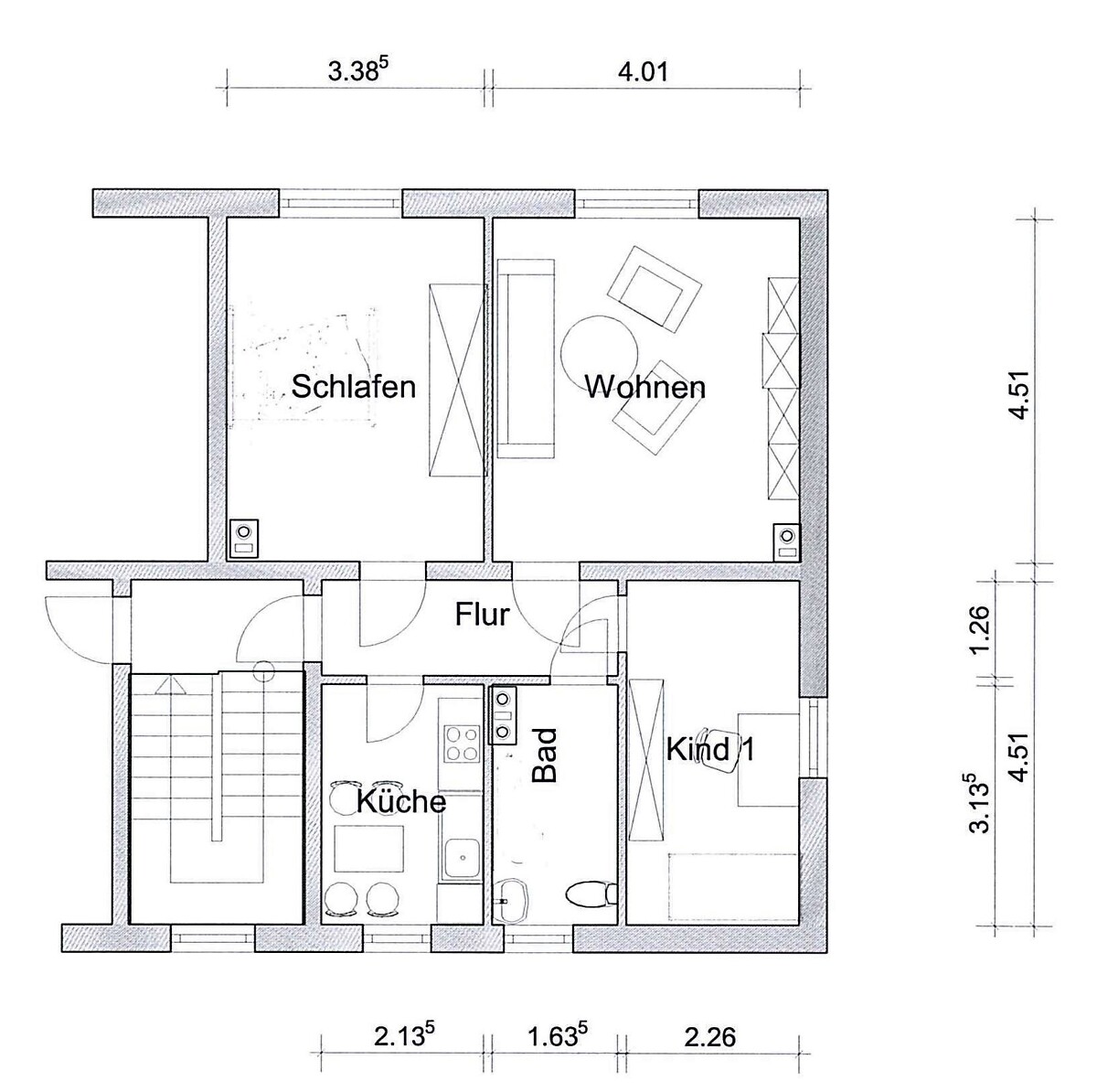
57.83 m²
Wohnfläche
2.5
Zimmer
1. OG
Etage
Ausstattung
Dusche
Wanne
Balkon
Aufzug
altersgerecht
barrierearm
Energieausweis
Energiekennwert:
99.40 kWh/(m²*a)
Ausweisart:
Verbrauchsausweis
Energieträger:
Gas
Heizungsart:
Zentralheizung
Baujahr:
1962
Energieverbrauch enthält Warmwasser.
Objektbeschreibung
Bei diesem Objekt handelt es sich um ein saniertes und sehr gepflegtes Mehrfamilienhaus. Unsere Wohnung für Sie bietet:
- Wohnzimmer
- Schlafzimmer
- Kinderzimmer
- Küche
- Tageslichtbad mit Dusche
- Wohnzimmer
- Schlafzimmer
- Kinderzimmer
- Küche
- Tageslichtbad mit Dusche
Lagebeschreibung
Sie und Ihre Familie wollen zentral, aber dennoch nicht in einer lauten Umgebung leben? Dann ist Borna-Nord das Wohngebiet für Sie. Dazu gehören:
Kitas, Grundschule, Gymnasium, eine zentrale Lage, ein aktives Vereinsleben, 3-Felder-Sporthalle und Sportstätten in unmittelbarer Umgebung, die Nähe zum Stadtkulturhaus mit seinen zahlreichen Veranstaltungen für Familien, eine gute Infrastruktur, Nähe zu Badeseen und viel Grün sowie die Nähe zu Kleingärten.
Einkaufsmöglichkeiten sind ebenfalls in der Nähe (Netto-Markt, Bäcker etc.)
Kitas, Grundschule, Gymnasium, eine zentrale Lage, ein aktives Vereinsleben, 3-Felder-Sporthalle und Sportstätten in unmittelbarer Umgebung, die Nähe zum Stadtkulturhaus mit seinen zahlreichen Veranstaltungen für Familien, eine gute Infrastruktur, Nähe zu Badeseen und viel Grün sowie die Nähe zu Kleingärten.
Einkaufsmöglichkeiten sind ebenfalls in der Nähe (Netto-Markt, Bäcker etc.)
Sonstiges
Service und Wohlgefühl als BWG-Mitglied: Als Wohnungsgenossenschaft bieten wir Ihnen mehr als andere Vermieter. Denn als Mitglied haben Sie nicht nur die Vorteile unserer zahlreichen Serviceleistungen, sondern können aktiv die Genossenschaft mitgestalten. Doch das Beste: In unserer Genossenschaft finden Sie die Sicherheit von Wohneigentum und die Flexibilität einer Mietwohnung vereint.
Unsere Serviceleistungen für Sie: kostenlose Kleinreparaturen, Hausmeisterservice und Havariedienst, Gästewohnungen, ständiger Ansprechpartner im Wohngebiet für Anliegen und Fragen, Veranstaltungen und Freizeitangebote und vieles mehr...
Highspeed Anschluss für TV, Telefonie und Internet durch neu verlegte Glasfaser-Zuführungen stehen in der Wohnung zur Verfügung. Wählen Sie ganz einfach nach Ihren Bedürfnissen einen Vertrag mit einem Partner Ihrer Wahl aus.
Unsere Serviceleistungen für Sie: kostenlose Kleinreparaturen, Hausmeisterservice und Havariedienst, Gästewohnungen, ständiger Ansprechpartner im Wohngebiet für Anliegen und Fragen, Veranstaltungen und Freizeitangebote und vieles mehr...
Highspeed Anschluss für TV, Telefonie und Internet durch neu verlegte Glasfaser-Zuführungen stehen in der Wohnung zur Verfügung. Wählen Sie ganz einfach nach Ihren Bedürfnissen einen Vertrag mit einem Partner Ihrer Wahl aus.
Wohnungsnummer: SB18 2,5RW 1.OG
